Description
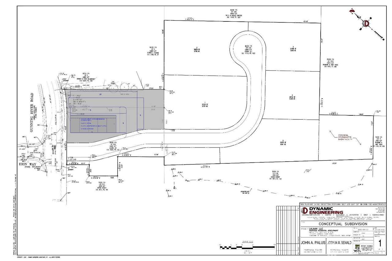
Mixed use development opportunity prime commercial real estate opportunity at 170 & 176 Gunning River Road, Barnegat Township, NJ. The property is tax block 174 lots 5.02 and 6.03 This property boasts advantageous TC - CN zoning, ideal for a diverse range of commercial and residential ventures. Approxamitly 5.5 acres. Boasting a concept plan for 5 residential lots and a mixed-use commercial/residential lot, the property presents an exciting canvas for development. Situated in an area experiencing rapid growth and potential, this parcel is poised to be a lucrative investment opportunity for a savvy land investor. Don't miss the chance to be part of the thriving Barnegat Township area's real estate landscape. Public record information contained in this listing is for tax lot 5.02 onl
School Ratings & Info
Description
Mixed use development opportunity prime commercial real estate opportunity at 170 & 176 Gunning River Road, Barnegat Township, NJ. The property is tax block 174 lots 5.02 and 6.03 This property boasts advantageous TC - CN zoning, ideal for a diverse range of commercial and residential ventures. Approxamitly 5.5 acres. Boasting a concept plan for 5 residential lots and a mixed-use commercial/residential lot, the property presents an exciting canvas for development. Situated in an area experiencing rapid growth and potential, this parcel is poised to be a lucrative investment opportunity for a savvy land investor. Don't miss the chance to be part of the thriving Barnegat Township area's real estate landscape. Public record information contained in this listing is for tax lot 5.02 onl
The data relating to real estate for sale on this web-site comes in part from the
Internet Listing Display database of the CENTRAL JERSEY MULTIPLE LISTING SYSTEM,
INC. Real estate listings held by brokerage firms other than this site-owner are marked with
the ILD logo. The CENTRAL JERSEY MULTIPLE LISTING SYSTEM, INC does not warrant the
accuracy, quality, reliability, suitability, completeness, usefulness or effectiveness of any
information provided. Copyright 2025, CENTRAL JERSEY MULTIPLE LISTING SYSTEM, INC. All rights
reserved. The CENTRAL JERSEY MULTIPLE LISTING SYSTEM, INC
retains all rights, title and interest in and to its trademarks, service marks and copyrighted
material. The information being provided is for consumers' personal, non-commercial use and may not be used for any purpose other than to identify properties the consumer may be interested in purchasing or renting. Data last updated: 2025-12-05T22:02:57.693.